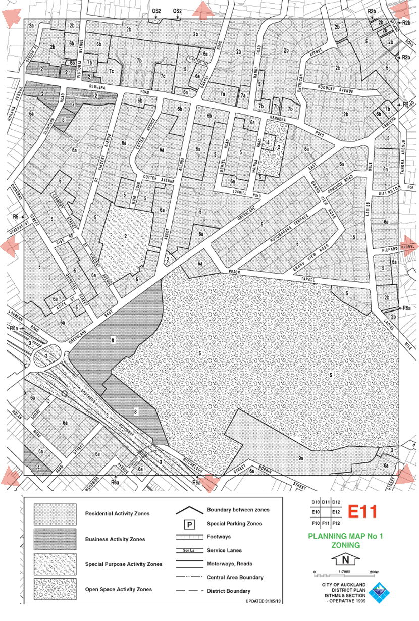
District Plan Planning Maps

Sheet E11 Planning Map 1


The purpose of this map is to indicate relevant zoning information.
Click on the area in the map legend to link to the appropriate text.

Note that this image is fairly large (199k) to show enough detail to help you get the correct information.
Click here to download the high resolution print version of the 3 sheets for this Planning Map - (722k)
(Click here for instructions if you're unsure how to use Acrobat pdf files)

Planning Map now loading (199k) - please wait....
 
Click the map legends for more detail. Click here for more help
 

Click here to download the high resolution print version of the 3 sheets for this Planning Map - (722k)
(Click here for instructions if you're unsure how to use Acrobat pdf files)